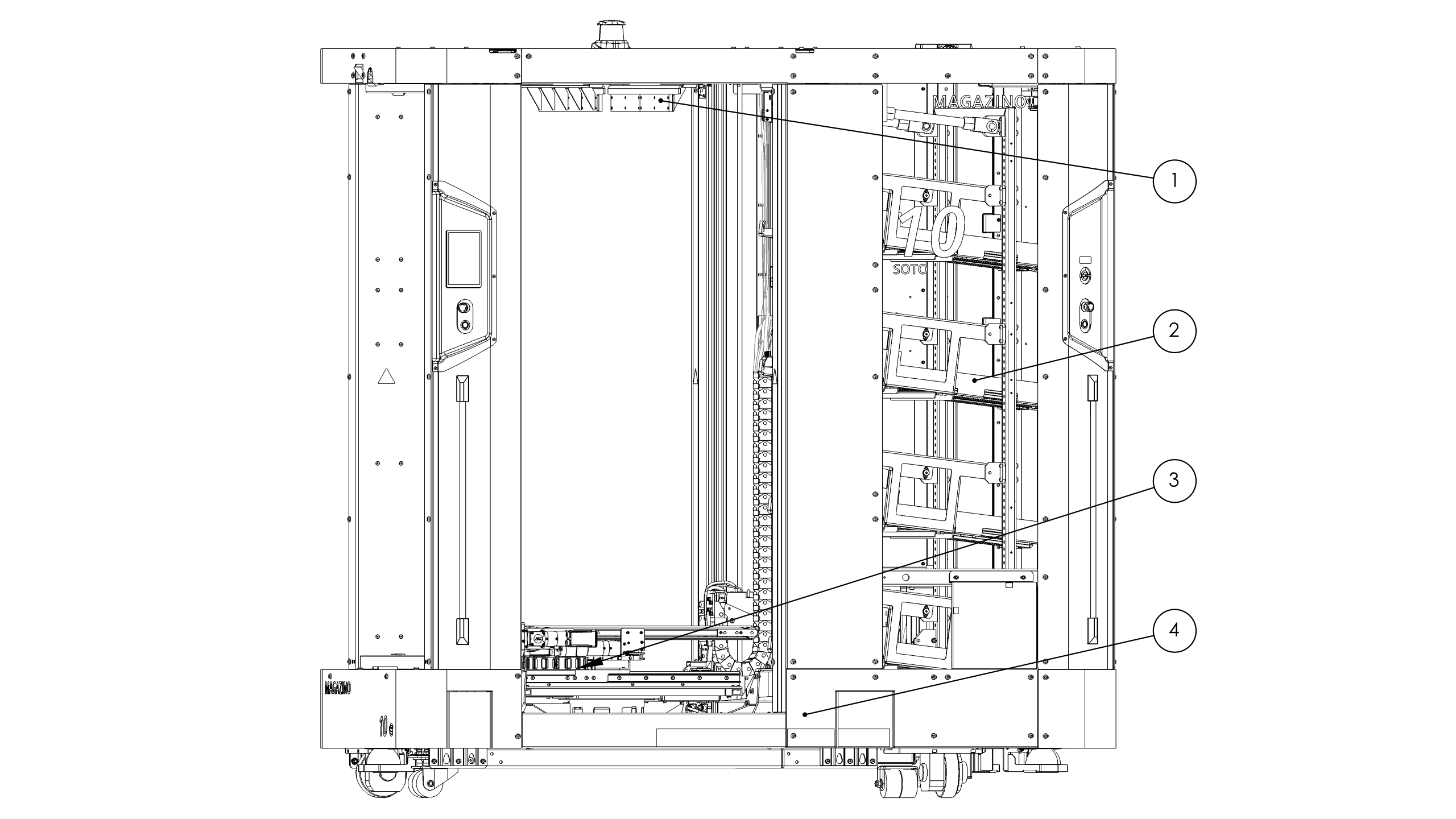
Components
Overview


ITEM NO. | DESCRIPTION | PART NUMBER |
1 | SOTO KLT press 1.2.0 | 1019703 |
2 | SOTO Backpack 5.1.1 | 1020040 |
3 | VA frame - Gripper | 1020003 |
4 | Soto 2.1- Drivebase complete | 1020004 |
SOTO 2.1.1 consists of four main modules. The conveyor gripper (3) that can pick up and place load carriers. The gripped load carriers can be held in the KLT press (1) in the upper area of the robot while the gripper rotates under the KLT. In this way, the orientation of the load carriers can be determined during placement.
Picked up load carriers can be temporarily stored in the backpack (2). The Backpack can be adapted to different types and sizes of load carriers. The capacity of the backpack depends on the load carriers used.
The drivebase (4) establishes contact with the floor.
Battery disconnect switch / Power switch


The battery disconnect switch is located at the rear left of the robot. It is used to disconnect the robot from the battery.
Gripper

Weight of the gripper | Maximum weight per KLT |
|---|---|
130 kg | 20 kg |
SOTO 2.1 is equipped with a conveyor gripper. The load carriers lie on the conveyor belts and can thus be picked up and deposited.
The gripper is automatically adjusted to the load carrier on several axes.
Top Laser Scanner

ITEM NO. | DESCRIPTION | PART NUMBER |
1 | Laser scanner OMD30M-R2000 | 1019639 |
The top laser scanner assists with navigation. Because the laser scanner has a field of view above the robot, it is not affected by dynamic obstacles, unlike lower laser scanners.

ITEM NO. | DESCRIPTION |
1 | Laser scanner folded up |
2 | Laser scanner retracted |
The top laser scanner is only required for automatic operation. The laser scanner can be retracted so that the robot can be moved manually through doors. The laser scanner is held in position by magnets and can be easily folded down using the handle (2).
Carefully fold up the laser scanner until the magnets hold it in place so that the laser scanner can be used again.
![]() | Notice! The laser scanner may be damaged by obstacles at laser height during manual travel.
|
|---|
KLT Press

The KLT press is used to hold a KLT while the gripper rotates under the KLT. In this way, the orientation of the KLT can be determined during placement.
![]() | Notice! The KLT press can only accommodate KLT. Load carriers that do not comply with VDA 4500 (R-KLT, RL-KLT) are not supported by the KLT press as standard. Load carriers that deviate from VDA 4500 (R-KLT, RL-KLT) but have similar properties must be tested before they are released for the KLT press. |
|---|
Backpack

The backpack is used for intermediate storage of the load carriers picked up. It can be individually adapted to the existing load carriers. It has a tilting mechanism to tilt the KLT.
The pick-up capacity depends on the load carriers present.
![]() | Notice! The load carriers in the backpack are not monitored. Do not remove any load carriers from the backpack without being explicitly instructed to do so. Removed load carriers may have to be transferred manually to the warehouse management system. |
|---|
Narrowing of the opening on the light curtain
.png?inst-v=a5276c9d-d703-4227-8c4d-b7392568c758)
ITEM NO. | DESCRIPTION | PART NUMBER |
1 | Light curtain safety block | 1021350 |
The light curtain safety blocks (1) are mounted on both sides of the opening, left and right in the direction of travel. They guarantee that the light curtain is triggered in the danger zone between the descending gripper and the underside of the robot opening.
Battery

The batteries used are basically maintenance-free. During the prescribed annual inspection, the batteries and connected cables must be visually checked to ensure that they are in fault-free condition.
The intended use of the batteries does not make any special demands on the working environment.
The batteries can be disconnected from the system using the power switch.
Product category | Model name | Rated capacity of one cell | Average operating voltage of one cell |
|---|---|---|---|
Lithium-ion battery pack | LIPY041WWPCSY6 | 21 Ah | 25.6 V |
![]() | Warning! Fire hazard! The electrolyte is flammable. Avoid short circuits at the connecting clamps on the batteries. Remove robots with damaged batteries from the fire hazard area immediately. |
|---|
![]() | Warning! Danger due to gases! Gases produced by burning batteries can cause irritation to the eyes, skin, and throat. |
|---|
![]() | Notice! The batteries may only be charged with the supplied charger. If the batteries are charged incorrectly, the battery system switches off automatically. If the charging parameters are extremely exceeded, the batteries may become defective. The batteries need to be fully charged regularly, at least once a week is recommended. |
|---|
Advice from Wiferion on handling the lithium iron phosphate battery: Murata module type B
Notes on transportation:
Lithium batteries are dangerous goods. They are therefore subject to the dangerous goods regulations.
Lithium batteries are classified in ADR (Road) / RID (Rail) 2021 as Class 9 Dangerous Goods (Miscellaneous Dangerous Substances and Articles).
They should/must be labeled as such and packaging regulations must be followed.
Only demonstrably trained persons may be involved in the transport.
Defective batteries may only be transported by certified specialist companies: - A distinction must be made here whether the battery is simply used up or—according to ADR SV 376 is damaged (physical damage, acute danger, etc.).
The batteries supplied by Wiferion meet the international transport test UN 38.3.
Notes on storage:
The storage of lithium batteries is currently not subject to any legal requirements. It is up to each company to define and implement suitable measures. In addition to general manufacturer information, which usually only refers to storage temperatures, there is a leaflet from the Association of Non-Life Insurers.
The ambient conditions for storing type B batteries from the product specification must be observed.
It is recommended to turn off the batteries and put them in “Shipping Mode” before long-term storage (more than 3 months).
The maximum storage time stated in the product specification must not be exceeded.
The storage location should be suitable for storing batteries (hazardous goods).
Notes on storage 2:
Enclosed you will find the most important environmental conditions for storage and transport of the Murata Type B LFP battery from the product specification:
number in document | Item | specification |
|---|---|---|
15 / 18 | temperature range | -20° to 60° degrees Celsius |
16 / 19 | humidity range | 10 – 90% RH (relative humidity) |
17 / 20 | pressure range | 11.6 kPa, or higher |
It is recommended to set the battery to “power down” status for optimal shelf life.
As a rule, the batteries are already delivered in “power-down status” and are delivered with approx. 30% SOC.
Notes on assembly:
The system integrator who carries out the installation is responsible for the safe installation of batteries in an overall system. Safety requirements during assembly cannot be viewed separately from the overall system.
Lithium batteries may only be installed upright or lying on their side. It must never be installed overhead.
When installing the modules, a secure hold must be ensured.
Never short-circuit batteries! This can result in high short-circuit currents.
Before assembly, please observe the safety instructions in the operating instructions and the manufacturer's battery specification.
Batteries may only be connected with suitable screws and plugs.
Be sure to observe the correct polarity.
Notes for operation:
Lithium batteries may only be charged with chargers approved by the manufacturer. etaLINK 3000 is approved for charging.
When used, the limits set by the manufacturer in the product specification must be observed. In particular, current, voltage, and temperature limits must be observed
Outside these limits, the battery system switches off automatically.
If the limit is exceeded extremely, the batteries may become defective.
Only batteries and modules of the same type may be installed together.
A short circuit of the batteries is to be avoided by appropriately isolating the poles.
Regularly fully charge the battery and let the battery management system (BMS) balance the cells.
Notes on maintenance:
Lithium batteries are basically maintenance-free.
The prescribed annual inspection must be carried out by trained specialist personnel. The currently valid accident prevention regulation “Industrial trucks” (BGV D27) requires in § 37 paragraph 1 an inspection of industrial trucks (including AGV) at intervals of no more than one year.
LFP batteries have a relatively long service life compared to other battery technologies, regardless of the state of charge and performance used.
Notes on disposal:
Li-ion accumulators contain metals such as copper, aluminum, and the transition metals cobalt and nickel as active materials.
Since 1998, the Battery Ordinance has required, among other things, all dealers and manufacturers take back batteries and recycle them properly or dispose of them as hazardous waste.
A new battery law was passed on January 1, 2021, which will come into full effect on January 1, 2022. Exact changes to the old regulation still have to be determined.
Further information can be found, e.g., on the website of the WEEE Foundation.
Hazards specific to lithium-ion battery recycling include: electrical and chemical hazards and fire hazard.
The recycling and transport of the batteries may only be carried out by certified specialist companies.
Induction surface on the robot

SOTO 2.1 uses contactless inductive charging. The robot automatically moves to the charging position. The induction surface of the robot communicates with the induction surface of the charger. Only when both devices have recognized each other is the charger activated and the robot charged.
![]() | Caution! Risk of burns! The induction surfaces on the robot and on the charger can become hot during charging. |
|---|
Charger

ITEM NO. | DESCRIPTION | PART NUMBER |
1 | SOTO 2.1.1 | 1020000 |
2 | Charging Station SOTO | 1018925 |
SOTO 2.1.1 uses contactless inductive charging. The robot automatically moves to the charging position. The induction surface of the robot communicates with the induction surface of the charger. Only when both devices have recognized each other is the charger activated and the robot charged.
![]() | Warning! Risk of electric shock! The charger is supplied with 230 V. Work on the charger may only be carried out by trained electricians. Disconnect the charger from the power supply before opening the charger. |
|---|
![]() | Caution! Danger of burns! The charger becomes hot during charging. The charger housing must be closed during normal operation. |
|---|
![]() | Notice! The batteries may only be charged with the supplied charger. If the batteries are incorrectly charged, the battery system switches off automatically. If the charging parameters are extremely exceeded, the batteries may become defective. |
|---|
![]() | Notice! The batteries may only be charged with the supplied charger. If the batteries are incorrectly charged, the battery system switches off automatically. If the charging parameters are extremely exceeded, the batteries may become defective. |
|---|
![]() | Notice! The batteries may only be charged with the supplied charger. If the batteries are incorrectly charged, the battery system switches off automatically. If the charging parameters are extremely exceeded, the batteries may become defective. |
|---|
Input | Output | ||
|---|---|---|---|
Input voltage | 1-phase, 230 V~ +/- 10% | Rated voltage | 48 V DC |
Input frequency | 50/60 Hz | Max. Output voltage | 60 V DC |
Input power | 3.3 kW | Min. output voltage | 15 V DC |
Current consumption | 16 A | Max. output power | 3 kW |
Connection | 230V socket CEE 16A 1-phase | Max. output current | 60 A DC |
Before connecting mains power, make sure that the mains receiver complies with the regulations and is equipped for 230 Vac at 50 Hz with protective earth conductor, an emergency OFF switch, a 16 A fuse, and an all-current sensitive RCD (type B). The charging device may be connected only to sockets with an earthing contact.

.png?inst-v=a5276c9d-d703-4227-8c4d-b7392568c758)