Komponenter
Oversikt


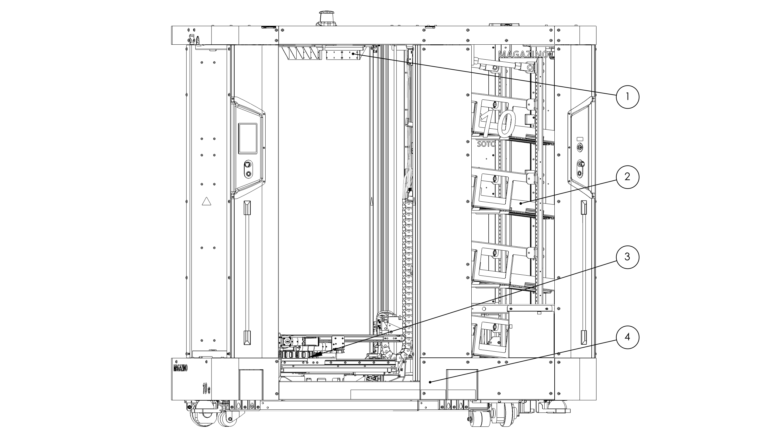
ARTIKKEL NR. | BESKRIVELSE | DELNUMMER |
1 | SOTO KLT-Klemme 1.2.0 | 1019703 |
2 | SOTO Ryggsekkhylle 5.1.1 | 1020040 |
3 | VA-ramme - Griper | 1020003 |
4 | Soto 2.1- Drivbase komplett | 1020004 |
SOTO 2.1.1 består av fire hovedmoduler. Transportbåndets griper (3) som kan plukke opp og plassere lastbærere. Lastbærerne, som er grepet av griperen, kan holdes fast i KLT-klemmen (1) i den øvre delen av roboten, mens griperen roterer under KLT-en. På denne måten kan lastbærernes orientering bestemmes under plasseringen.
Oppsamlede lastbærere kan mellomlagres i ryggsekkhyllen (2). Ryggsekkhyllen kan tilpasses ulike typer og størrelser av lastbærere. Kapasiteten til ryggsekkhyllen avhenger av hvilke lastbærere som brukes.
Drivbasen (4) etablerer kontakt med gulvet.
Frakoblingsbryter for batteri / strømbryter


Batteribryteren er plassert bak til venstre på roboten. Den brukes til å koble roboten fra batteriet.
Griper

Griperens vekt | Maksimal vekt per KLT |
|---|---|
130 kg | 20 kg |
SOTO 2.1 er utstyrt med en transportbåndgriper. Lastbærerne ligger på transportbåndene og kan dermed plukkes opp og deponeres.
Griperen justeres automatisk til lastbæreren på flere akser.
Øvre laserscanner

ARTIKKEL NR. | BESKRIVELSE | DELNUMMER |
1 | Laserskanner OMD30M-R2000 | 1019639 |
Den øverste laserskanneren hjelper til med navigering. Fordi laserskanneren har et synsfelt over roboten, påvirkes den ikke av dynamiske hindringer, i motsetning til lavere laserskannere.

ARTIKKEL NR. | BESKRIVELSE |
1 | Laserskanner utkjørt |
2 | Laserskanner trukket inn |
Den øverste laserskanneren er kun nødvendig for automatisk drift. Laserskanneren kan trekkes inn slik at roboten kan flyttes manuelt gjennom dører. Laserskanneren holdes på plass av magneter og kan lett klappes ned ved hjelp av håndtaket (2).
Skyv laserskanneren forsiktig oppover til magnetene holder den på plass, slik at laserskanneren kan brukes igjen.
![]() | Merk! Laserskanneren kan bli skadet av hindringer i laserhøyde under manuell kjøring.
|
|---|
KLT-Klemme

KLT-klemmen brukes til å holde en KLT mens griperen roterer under KLT-en. På denne måten kan KLT-retningen bestemmes under plasseringen.
![]() | Merk! KLT-klemmen har kun plass til KLT. Lastbærere som ikke er i samsvar med VDA 4500 (R-KLT, RL-KLT), støttes ikke av KLT-klemmen som standard. Lastbærere som avviker fra VDA 4500 (R-KLT, RL-KLT), men som har lignende egenskaper, må testes før de frigis for KLT-klemmen. |
|---|
Ryggsekkhylle

Ryggsekkhyllen brukes til mellomlagring av lastbærerne som hentes. Den kan tilpasses individuelt til de eksisterende lastbærerne. Den har en vippemekanisme for å vippe KLT.
Oppsamlingskapasiteten avhenger av hvilke lastbærere som er til stede.
![]() | Merk! Lastbærerne i Ryggsekkhyllen overvåkes ikke. Ikke fjern lastbærere fra Ryggsekkhyllen uten at du har fått eksplisitt beskjed om å gjøre det. Fjernede lastbærere må kanskje overføres manuelt til lagerstyringssystemet |
|---|
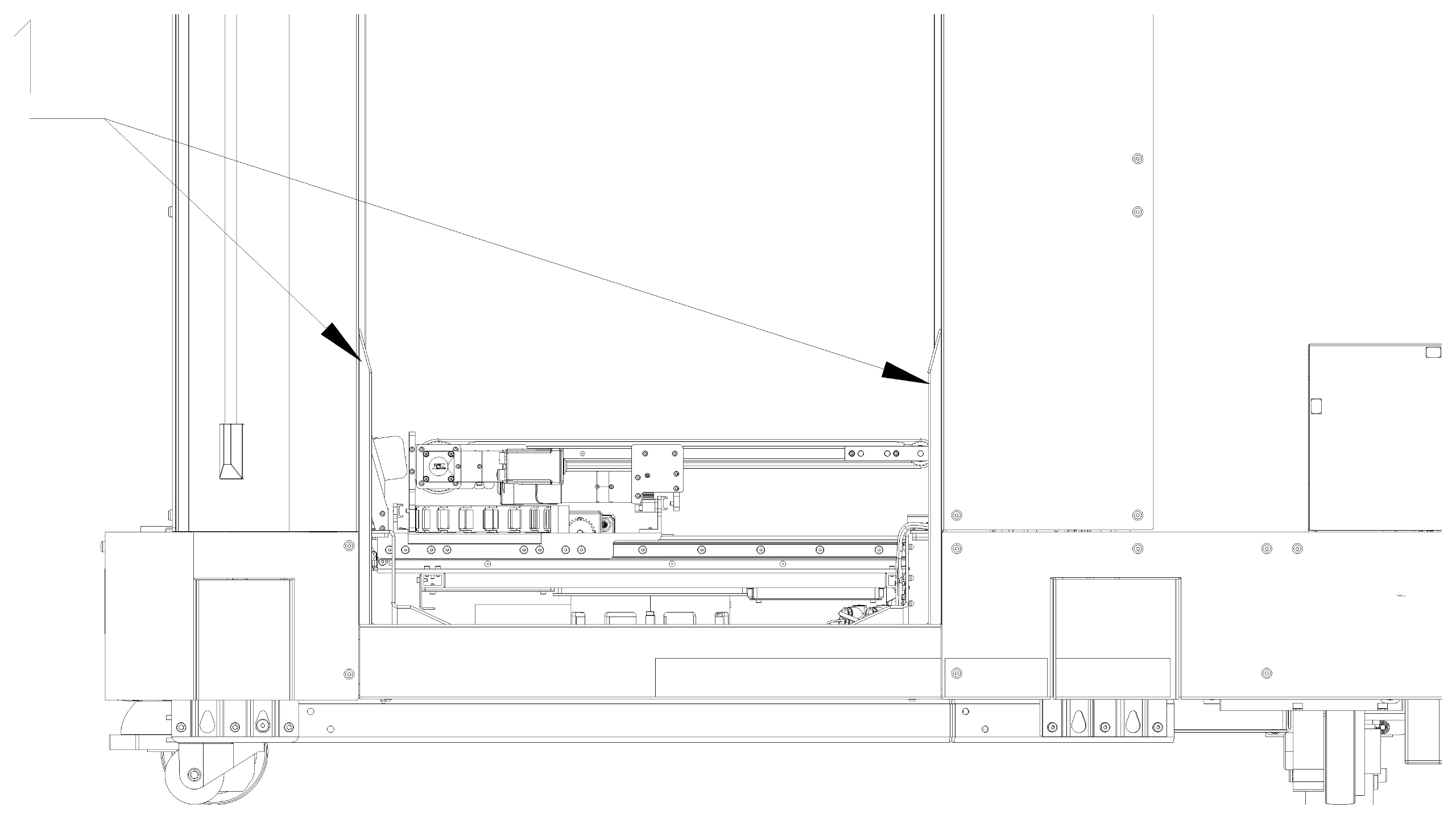
Innsnevring av åpningen på lysgardinen
.png?inst-v=a5276c9d-d703-4227-8c4d-b7392568c758)
ARTIKKEL NR. | BESKRIVELSE | DELNUMMER |
1 | Sikkerhetsblokk for lysgardin | 1021350 |
Lysgardinens sikkerhetsblokker (1) er montert på begge sider av åpningen, til venstre og høyre i kjøreretningen. De garanterer at lysgardin utløses i farezonen mellom den nedadgående griperen og undersiden av robotåpningen.
Batteri

Batteriene som brukes, er i utgangspunktet vedlikeholdsfrie. Under den foreskrevne årlige inspeksjonen må batteriene og de tilkoblede kablene kontrolleres visuelt for å sikre at de er i feilfri tilstand.
Den tiltenkte bruken av batteriene stiller ingen spesielle krav til arbeidsområdet.
Batteriene kan kobles fra systemet ved hjelp av strømbryteren.
Produktkategori | Modellnavn | Ratert kapasitet for én celle | Gjennomsnittlig driftsspenning for én celle |
|---|---|---|---|
Litium-ion-batteripakke | LIPY041WWPCSY6 | 21 Ah | 25.6 V |
![]() | Advarsel! Brannfare! Elektrolytten er brannfarlig. Unngå kortslutning ved tilkoblingsklemmene på batteriene. Fjern roboter med skadede batterier fra brannfareområdet umiddelbart. |
|---|
![]() | Advarsel! Fare på grunn av gasser! Gasser som dannes ved forbrenning av batterier, kan forårsake irritasjon i øyne, hud og hals. |
|---|
![]() | Merk! Batteriene må kun lades med den medfølgende laderen. Hvis batteriene lades feil, slår batterisystemet seg automatisk av. Hvis ladeparametrene overskrides ekstremt, kan batteriene bli defekte. Batteriene må lades opp regelmessig, minst én gang i uken anbefales. |
|---|
Råd fra Wiferion om håndtering av litiumjernfosfatbatteriet: Murata-modul type B
Merknader om transport:
Litiumbatterier er farlig gods. De er derfor underlagt regelverket for farlig gods.
Litiumbatterier er klassifisert i ADR (vei) / RID (jernbane) 2021 som farlig gods i klasse 9 (diverse farlige stoffer og gjenstander).
De bør/må merkes deretter, og emballeringsbestemmelsene må følges.
Bare personer som beviselig har fått opplæring, kan delta i transporten.
Defekte batterier må kun transporteres av sertifiserte spesialfirmaer: - Her må det skilles mellom om batteriet bare er oppbrukt eller om det i henhold til ADR SV 376 er skadet (fysisk skade, akutt fare osv.).
Batteriene som leveres av Wiferion, oppfyller den internasjonale transporttesten UN 38.3.
Merknader om lagring:
Lagring av litiumbatterier er foreløpig ikke underlagt noen lovpålagte krav. Det er opp til hver enkelt bedrift å definere og iverksette egnede tiltak. I tillegg til generell produsentinformasjon, som vanligvis bare refererer til lagringstemperaturer, finnes det en brosjyre fra Association of Non-Life Insurers.
Omgivelsesforholdene for oppbevaring av batterier av type B i produktspesifikasjonen må overholdes.
Det anbefales å slå av batteriene og sette dem i "Shipping Mode" før langtidslagring (mer enn 3 måneder).
Den maksimale lagringstiden som er angitt i produktspesifikasjonen, må ikke overskrides.
Oppbevaringsstedet skal være egnet for oppbevaring av batterier (farlig gods).
Merknader om lagring 2:
Vedlagt finner du de viktigste betingelsene for oppbevaring og transport av Murata Type B LFP-batteriet fra produktspesifikasjonen:
nummer i dokumentet | Artikkel | spesifikasjon |
|---|---|---|
15 / 18 | temperaturområde | -20° til 60° grader Celsius |
16 / 19 | luftfuktighetsområde | 10 - 90 % RH (relativ luftfuktighet) |
17 / 20 | trykkområde | 11,6 kPa eller høyere |
Det anbefales å sette batteriet i "strømløs"-status for optimal holdbarhet.
Batteriene leveres som regel allerede i "power-down-status" og leveres med ca. 30 % SOC.
Merknader om montering:
Systemintegratoren som utfører installasjonen, er ansvarlig for sikker installasjon av batterier i et samlet system. Sikkerhetskravene under monteringen kan ikke betraktes separat fra det totale systemet.
Litiumbatterier må kun installeres stående eller liggende på siden. Den må aldri monteres over hodet.
Ved montering av modulene må det sørges for sikkert fastspenning.
Kortslutt aldri batterier! Dette kan resultere i høye kortslutningsstrømmer.
Før montering må du ta hensyn til sikkerhetsanvisningene i bruksanvisningen og produsentens batterispesifikasjon.
Batterier må kun kobles til med egnede skruer og plugger.
Sørg for å overholde riktig polaritet.
Merknader for bruk:
Litiumbatterier må kun lades med ladere som er godkjent av produsenten. etaLINK 3000 er godkjent for lading.
Ved bruk må grenseverdiene som er angitt av produsenten i produktspesifikasjonen overholdes. Spesielt må strøm-, spennings- og temperaturgrenser overholdes
Utenfor disse grensene slår batterisystemet seg automatisk av.
Hvis grensen overskrides ekstremt, kan batteriene bli defekte.
Bare batterier og moduler av samme type kan installeres sammen.
Kortslutning av batteriene må unngås ved å isolere polene på riktig måte.
Lad batteriet helt opp regelmessig, og la batteristyringssystemet (BMS) balansere cellene.
Merknader om vedlikehold:
Litiumbatterier er i utgangspunktet vedlikeholdsfrie.
Den foreskrevne årlige inspeksjonen må utføres av opplært fagpersonell. Den gjeldende ulykkesforebyggende forskriften « Industritrucker» (BGV D27) krever i § 37, punkt 1 en inspeksjon av industritrucker (inkludert AGV) med intervaller på ikke mer enn ett år.
LFP-batterier har relativt lang levetid sammenlignet med andre batteriteknologier, uavhengig av ladetilstand og ytelse.
Merknader om avhending:
Li-ion-akkumulatorer inneholder metaller som kobber, aluminium og overgangsmetallene kobolt og nikkel som aktive materialer.
Siden 1998 har batteriforordningen blant annet pålagt alle forhandlere og produsenter å ta tilbake batterier og resirkulere dem på riktig måte eller kaste dem som farlig avfall.
En ny batterilov ble vedtatt 1. januar 2021, og den vil tre i kraft fullt ut 1. Januar 2022. De nøyaktige endringene i forhold til det gamle regelverket er ennå ikke fastsatt.
Du finner mer informasjon på nettstedet til WEEE Foundation.
Spesifikke farer ved resirkulering av litiumionbatterier omfatter: elektriske og kjemiske farer og brannfare.
Resirkulering og transport av batteriene må kun utføres av sertifiserte spesialfirmaer.
Induksjonsflate på roboten

SOTO 2.1 bruker kontaktløs induktiv lading. Roboten beveger seg automatisk til ladeposisjon. Induksjonsflaten på roboten kommuniserer med induksjonsflaten på laderen. Først når begge enhetene har gjenkjent hverandre, aktiveres laderen og roboten lades.
![]() | Varsel! Fare for brannskader! Induksjonsflatene på roboten og på laderen kan bli varme under lading. |
|---|
Lader

ARTIKKEL NR. | BESKRIVELSE | DELNUMMER |
1 | SOTO 2.1.1 | 1020000 |
2 | Ladestasjon SOTO | 1018925 |
SOTO 2.1.1 bruker kontaktløs induktiv lading. Roboten beveger seg automatisk til ladeposisjon. Induksjonsflaten på roboten kommuniserer med induksjonsflaten på laderen. Først når begge enhetene har gjenkjent hverandre, aktiveres laderen og roboten lades.
![]() | Advarsel! Fare for elektrisk støt! Laderen leveres med 230 V. Arbeid på laderen må kun utføres av utdannede elektrikere. Koble laderen fra strømforsyningen før du åpner laderen. |
|---|
![]() | Varsel! Fare for brannskader! Laderen blir varm under lading. Laderhuset må være lukket under normal drift. |
|---|
![]() | Merk! Batteriene må kun lades med den medfølgende laderen. Hvis batteriene ikke er riktig ladet, slår batterisystemet seg automatisk av. Hvis ladeparametrene overskrides ekstremt, kan batteriene bli defekte. |
|---|
![]() | Merk! Batteriene må kun lades med den medfølgende laderen. Hvis batteriene ikke er riktig ladet, slår batterisystemet seg automatisk av. Hvis ladeparametrene overskrides ekstremt, kan batteriene bli defekte. |
|---|
![]() | Merk! Batteriene må kun lades med den medfølgende laderen. Hvis batteriene ikke er riktig ladet, slår batterisystemet seg automatisk av. Hvis ladeparametrene overskrides ekstremt, kan batteriene bli defekte. |
|---|
Input | Output | ||
|---|---|---|---|
Inngangsspenning | 1-fase, 230 V~ +/- 10 | Nominell spenning | 48 V DC |
Inngangsfrekvens | 50/60 Hz | Maks. Utgangsspenning | 60 V DC |
Inngangseffekt | 3.3 kW | Min. Utgangsspenning | 15 V DC |
Strømforbruk | 16 A | Maks. utgangseffekt | 3 kW |
Tilkobling | 230V stikkontakt CEE 16A 1-fase | Maks. utgangsstrøm | 60 A DC |
Før du kobler til strømnettet, må du forsikre deg om at strømmottakeren er i samsvar med forskriftene og er beregnet for 230 Vac ved 50 Hz med beskyttelsesjord, en nødstoppbryter, en 16 A sikring og en jordfeilbryter med allstrømsfølsomhet (type B). Ladeenheten må kun kobles til stikkontakter med jordingskontakt.

.png?inst-v=a5276c9d-d703-4227-8c4d-b7392568c758)